Rif. V001246
4 o più locali
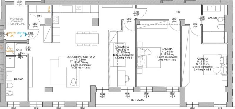
CONSEGNA FINITO APPARTAMENTO RESTAURATO ESTERNAMENTE ED INTERNAMENTE POSSIBILITA' SCELTA FINITURE, COMPOSTO DA INGRESSO, SOGGIORNO, CUCINA ABITABILE, TRE CAMERE, DUE BAGNI, SOFFITTA, RIPOSTIGLIO, GARAGE, POSSIBILITA' POSTO AUTO
|
SCHEDA
|
 |
FOTOGRAFIE, DOCUMENTI E VIDEO
|
 |
 |
| Prezzo: |
370.000,00 EUR |
| Spese Annue: |
2.500,00 EUR |
| Metri Quadri: | 134 | | Classe Energetica: | A2 | | Numero Locali: | 5 | | Numero Camere: | 3 | | Numero Bagni: | 2 | | Numero Box: | 1 | | Mq Box: | 15 | | Stato Immobile: | Nuovo | | Grado: | Signorile | | Posizione: | Centro | | Panorama: | Vista Giardino | | Orientamento: | Ovest | | Lati Liberi: | 1 | | Giardino: | Comune | | Tipo Soggiorno: | Soggiorno | | Tipo Cucina: | Abitabile | | Riscaldamento: | Conta Calorie | | Tipo Riscaldam.: | Caldaia a Condensazione | | Tipo Impianto: | Radiatori | | Fonte Energetica: | Gas | | Acqua Calda: | Autonoma | | Raffrescamento: | Split | | Infissi: | PVC Doppio Vetro | | Balconi: | No | | Terrazzi: | Uno | | Cantina - Solaio: | Solaio | | Accesso Disabili: | Nessuna Barriera | | Accessori: | Aria Condizionata, Ascensore, Cancello Elettrico, Doppi Vetri, Fibra Ottica, Impianto Satellitare, Parco Condominiale, Porta Blindata, Portineria/Custode |
|
 |
Clicca sulle foto per ingrandire
 
|